- Главная
- Каталог
- Новый каталог
- Промышленная НВА
- Автоматические выключатели серии ВА88
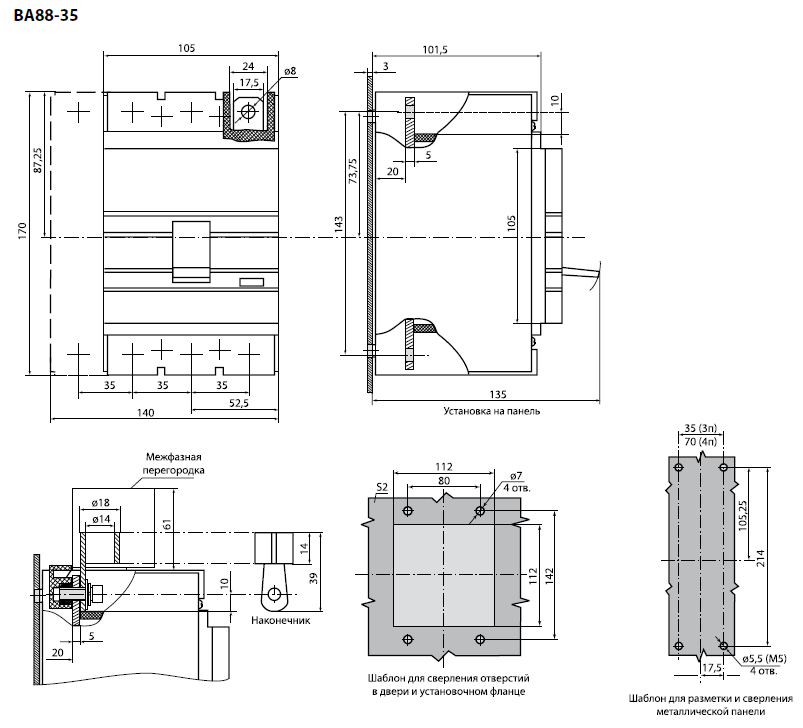
- Автоматический выключатель ВА88-35
- ВА88-35 3Р 63А 35кА TDM
ВА88-35 3Р 63А 35кА TDM
 по запросу 
                
            Артикул SQ0707-0066
            
            
            
        Автоматический выключатель ВА88-35 3Р 63А 35кА TDM SQ0707-0066
Назначение
- Проведение тока в нормальном режиме.
- Отключение тока при коротких замыканиях, перегрузке, недопустимых снижениях напряжения.
- Оперативное включение и выключение электрических цепей.

Применение
- Жилое и гражданское строительство.
- Производственные объекты.
- Электроподстанции.
Материалы
- Пластиковые детали корпуса выполнены из стеклонаполненного полиамида. Он обеспечивает устойчивость к деформациям, возникающим при коротком замыкании и ударным нагрузкам.
Конструкция
- Позволяет самостоятельно устанавливать дополнительные аксессуары.
- Возможность монтажа на DIN рейку при помощи специальной скобы.
- Возможность установки под углом до 30% в любую сторону без изменений номинальных характеристик.
- Двойная изоляция полное отделение силовых цепей от цепей аксессуаров.
Преимущества
- Компактные размеры (габариты и масса) примерно на 15% меньше аналогичных выключателей.
- Увеличенный гарантийный срок эксплуатации 5 лет
Маркировка
- Номинальный ток величина тока в амперах (А), которую выключатель способен пропускать бесконечно долго без отключения цепи.
- Предельная отключающая способность (Icu) максимальный ток короткого замыкания, который автоматический выключатель способен отключить и остаться в работоспособном состоянии
- Рабочая отключающая способность (Ics) величина тока короткого замыкания, который автоматический выключатель способен отключить, после чего аппарат сможет сразу же снова включиться после устранения неполадок в цепи.
- Категория применения ?А? означает, что аппарат специально не предназначен для обеспечения селективности (то есть задержки при срабатывании) при возникновении токов КЗ. Выключатели категории В являются селективными и такую функцию обеспечивают.
- Номинальное рабочее напряжение напряжение переменного тока ( знак ~ ), при котором аппарат работает в нормальных условиях.
Комплектация
- Переходные шины.
- Межфазные перегородки.
- Комплект винтов для крепления на панель.
- Комплект для присоединения внешних проводов.


Технические характеристики:
| Минимальная отгрузка, ед. | 1 | 
|---|




















 
            













